508 247 805 smnaszdom@onet.eu

Wysoka, dnia 22.01.2026 r.

ZAWIADOMIENIE O PRZETARGU

NA USTANOWIENIE ODRĘBNEJ WŁASNOŚCI

LOKALU MIESZKALNEGO

Zarząd Spółdzielni Mieszkaniowej „Nasz Dom” zawiadamia,

że w dniu 19.02.2026 r. o godz. 16.00

w siedzibie Spółdzielni Mieszkaniowej „Nasz Dom”

ul. Fabryczna 4, 42-450 Wysoka

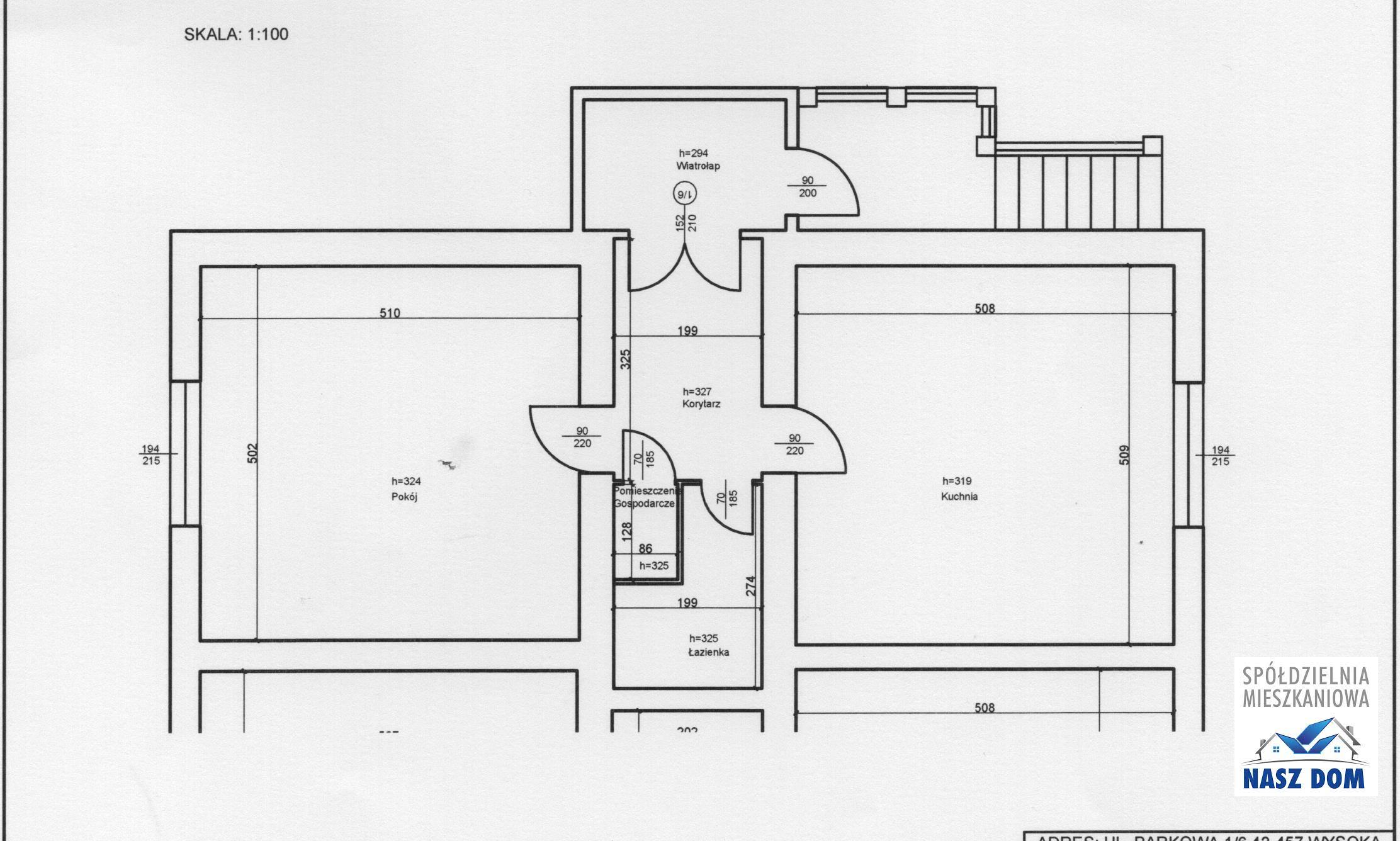
odbędzie się przetarg na ustanowienie odrębnej własności lokalu mieszkalnego nr 6 położonego w Wysokiej (gmina Łazy)

przy ul. Parkowej 1

o powierzchni użytkowej 63,30 m kw. (pokój, kuchnia, łazienka, przedpokój i wiatrołap) znajdującego się na parterze.

Z osobą, która nabędzie lokal w przetargu zostanie zawarta umowa sprzedaży i ustanowienia odrębnej własności lokalu

w formie aktu notarialnego.

Kwota wywoławcza lokalu wynosi 84 000,00 zł 

 (słownie: osiemdziesiąt cztery tysiące złotych 00/100).

Wycena lokalu mieszkalnego dokonana przez rzeczoznawcę majątkowego jest do wglądu w siedzibie Spółdzielni Mieszkaniowej „Nasz Dom”

 (ul. Fabryczna 4, 42-450 Wysoka, tel. kont. 508 247 805),

po wcześniejszym telefonicznym umówieniu wizyty.

Każda osoba biorąca udział w przetargu powinna zapoznać się z Regulaminem przeprowadzenia przetargu na ustanowienie odrębnej własności i sprzedaż lokali będących własnością Spółdzielni Mieszkaniowej „Nasz Dom”, który udostępniony jest na stronie internetowej Spółdzielni lub w siedzibie  Spółdzielni, ul. Fabryczna 4, 42-450 Wysoka.

Ww. lokal mieszkalny będzie udostępniony do obejrzenia

od dnia 09.02.2026 r. 

Zamiar obejrzenia lokalu należy zgłosić telefonicznie pod nr 508 247 805.

Ofertę składa się pisemnie w zamkniętej kopercie z napisem:
„Przetarg na lokal nr 6 przy ul. Parkowej 1 w Wysokiej”
w biurze Spółdzielni Mieszkaniowej „Nasz Dom”

ul. Fabryczna 4, 42-450 Wysoka do dnia 18.02.2026 r., do godz. 14:00.

Do oferty powinna być dołączona zgoda w formie pisemnej na przetwarzanie danych osobowych przez Spółdzielnię Mieszkaniową „Nasz Dom”. Druki dostępne są na stronie internetowej Spółdzielni  

lub w siedzibie  Spółdzielni, ul. Fabryczna 4, 42-450 Wysoka.

W przetargu mogą brać udział osoby, które wpłaciły na konto Spółdzielni
(nr konta PKO BP 41 1020 4900 0000 8502 3021 0935)
wadium w wysokości 1/10 kwoty wywoławczej, tj. 8400,00 zł 

(słownie: osiem tysięcy czterysta złotych).

Wadium oferenta, który wygrał przetarg,

zalicza się na poczet wartości lokalu.

Osoby zamierzające nabyć lokal przy pomocy kredytu bankowego, do oferty dołączają zaświadczenie z banku o wydaniu

przyrzeczenia udzielenia kredytu.

Po otwarciu kopert i zreferowaniu treści złożonych ofert przetarg odbywa się dalej ustnie. Zaoferowana kwota przestaje wiązać, gdy biorący udział w przetargu licytant zaoferował kwotę wyższą. Przewodniczący Komisji ogłasza, który z oferentów wygrał przetarg oferując najwyższą kwotę, podaje jej wysokość, a następnie zamyka przetarg. Nabywca lokalu po zakończeniu przetargu winien w ciągu 30 dni wpłacić na konto Spółdzielni w całości kwotę odpowiadającą wartości lokalu uzyskaną w przetargu. Jeżeli nabywca nie wykona w terminie warunków przetargu co do zapłaty całości kwoty, traci wadium, a skutki wygranego przetargu wygasają. Osobom, które nie wygrały przetargu wadium zwracane jest na wskazane konto w ciągu 7 dni roboczych od dnia zamknięcia przetargu.

Spółdzielnia Mieszkaniowa „Nasz Dom” zastrzega sobie prawo odwołania przetargu bez podania przyczyny.

ZAŁĄCZNIKI:

Oferta

Zgoda na przetwarzanie danych osobowych

Regulamin przeprowadzania przetargu na ustanowienie odrębnej własności i sprzedaż lokali

rzut lokalu